MCF系列磁性分離器
時間:2013-06-22 16:36

磁性分離器分為梳齒型磁性分離器(詳見http://www.cnmingyu.com.cn/fenliqilei/20110106201.html)和平輥型型磁性分離器,平輥型按磁性強弱還分為強磁性和普通型用于磨床及其他機床冷卻液(切削油或乳化液)的凈化。通過分離器的磁性滾筒把冷卻液中的鐵屑吸出,使冷卻液保持干凈。使用磁性分離器可以減少砂輪修正次數,提高工件的表面光潔度,延長砂輪和冷卻液的使用壽命。同時它的體積小、壽命長、維修保養方便,減輕工人的勞動強度,減少了冷卻液對環境的污染,還可以與紙帶過濾機組合使用,過濾精度提高。磁性分離器是磨床及磨削加工自動線的重要附件。 磁性分離器可以與GL1型紙帶過濾機配合使用,組成GL2紙帶過濾機取得更好的過濾效果,詳情見http://www.cnmingyu.com.cn/guolvjilei/20110106195.html
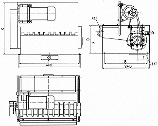
| 型號 | 流量 | A | B | C | D | E | 進水口 | 電機功率 |
| SCF100 | 100 | 318 | 420 | 480 | 255 | 180 | G2” | 60w |
| SCF200 | 200 | 456 | 420 | 480 | 255 | 200 | G3” | 90w |
| SCF300 | 300 | 640 | 420 | 480 | 255 | 200 | G3” | 120w |
| SCF400 | 400 | 832 | 420 | 480 | 255 | 200 | G3” | 200w |
| SCF500 | 500 | 1030 | 420 | 480 | 255 | 200 | G3” | 370w |

上一篇:SCF梳齒分離器 下一篇:SCF梳齒磁性分離器
